Mayer Schaltechnik, алюминиевая балочная опалубка перекрытий MiniMAX

EUR 450,00

без налога плюс доставка

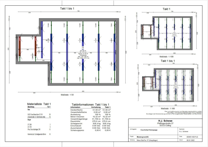
Опалубочный подшипник для EuroSchal. Теперь вы должны добавить программу опалубки стен полная версия или обновление.